РІЕЛ долучається до збору HAPPY OPTORIZ і передає квартиру в Києві

Фонд «Спільнота Стерненка» відзначає першу річницю та оголошує новий масштабний збір HAPPY OPTORIZ. Його мета – зібрати 50 мільйонів гривень на 1200 оптоволоконних FPV-дронів для найгарячіших напрямків фронту – Покровськ, Костянтинівка, Гуляйполе, Словʼянськ і не тільки.

15.01.2026
РІЕЛ долучається до збору HAPPY OPTORIZ і передає квартиру в Києві

Посилання на банку для донату: https://send.monobank.ua/jar/6NRDQr5hkV

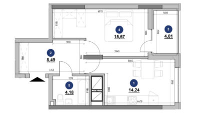
Щоб підсилити ініціативу, девелопер РІЕЛ надав квартиру в Києві, яку буде розіграно серед донаторів. Йдеться про помешкання в житловому комплексі бізнес-класу Nordica Residence на Печерську.

РІЕЛ долучається до збору HAPPY OPTORIZ і передає квартиру в Києві

Механіка збору проста:

– участь у розіграші беруть донати від 300 гривень на банку збору;

– чим більша сума, кратна 300 гривням, тим вищі шанси виграти квартиру;

– долучитися може кожен – верхньої межі донату немає.

Усі, хто задонатить від 300 грн через банку в monobank, автоматично беруть участь у розіграші квартири від РІЕЛ.

HAPPY OPTORIZ – це ще один крок до посилення українських воїнів там, де це потрібно найбільше. Долучайтеся.

Влітку 2025 року масштабний благодійний збір «Тотальний Rusoriz», організований «Спільнотою Стерненка» за підтримки РІЕЛ, успішно завершився. У межах ініціативи вдалося зібрати 100 мільйонів гривень, завдяки чому буде закуплено 555 перехоплювачів «Шахедів» та 1660 інших дронів.

Також влітку того ж року РІЕЛ спільно з monobank та фондом «Спільнота Стерненка» відзвітували про успішне завершення ще одного збору. У його межах на закупівлю FPV-дронів вдалося акумулювати 86 мільйонів гривень – майже на 16 мільйонів більше від початково запланованої суми.

Джерело: Девелопер РІЕЛ

Коментарі

В Україні вступив у дію новий закон про ветеринарну медицину та благополуччя тварин
15:40
В Україні вступив у дію новий закон про ветеринарну медицину та благополуччя тварин
В Україні набрав чинності Закон № 1206-IX «Про ветеринарну медицину та благополуччя тварин». Документ передбачає системне оновлення правил у сфері здоров’я тварин, формує сучасну модель державного контролю та підвищує стандарти їх благополуччя.
Підберізцівська, Львівська та Пустомитівська – лідери рейтингу громад Львівщини
11:52
Підберізцівська, Львівська та Пустомитівська – лідери рейтингу громад Львівщини
Рейтинг територіальних громад Львівщини станом на 1 лютого 2026 року став ще точнішим і більш орієнтованим на реальні результати. Оцінювання охоплює 50 показників у семи блоках та відображає причинно-наслідкові зв’язки між управлінськими рішеннями і розвитком громади.
Ще мінус 3,88 гектара? Як у Брюховичах під час війни намагаються красти ліс
09:03
Ще мінус 3,88 гектара? Як у Брюховичах під час війни намагаються красти ліс
Брюховицькі ліси знову опинилися в центрі кримінального розслідування.
ЖК Big Ben у Львові будується за планом
14:43
ЖК Big Ben у Львові будується за планом
РІЕЛ продовжує будівництво нашого флагманського проєкту у Франківському районі Львова в запланованому темпі. Від старту робіт виконано близько 50% залізобетонних конструкцій першої черги, а показник дотримання календарного графіка становить 98%.